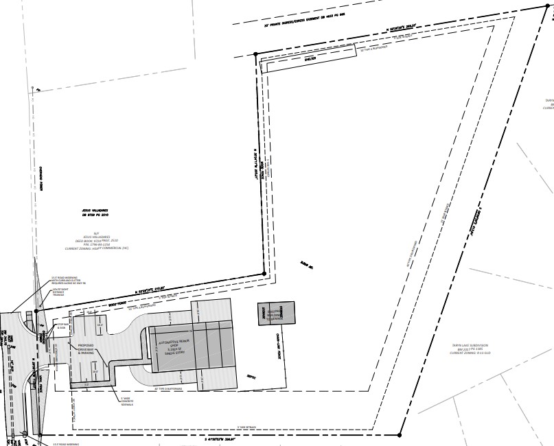
Conditional Rezoning request for construction of an automotive repair and servicing building. Conditional Rezoning Initial SubmittalMarch 1, 2024ApplicationConstruction DrawingsResubmittalOctober 1, 2024ApplicationConstruction DrawingNeighborhood Meeting