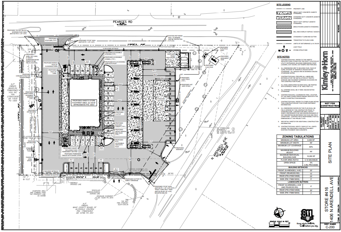
Redevelopment of the existing Sheetz site. The building and site will be demoed and rebuilt to include a 6,139 SF building with a pickup window and one additional Multi-Product Dispenser (MPD). The existing car wash will be removed. The layout will be adjusted from the current orientation to comply with Unified Development Ordinance (UDO) 4.3.5.O.a: "pump islands may not be located between a building and any adjacent street rights-of-way." The new pickup window has triggered the Planned Development (PD) application process.

Initial Submittal
May 29, 2025
Certified List of Adjacent Property Owner's
Planned Development (PD) Application
Planned Development (PD) Narrative
Resubmittal
August 15, 2025
Construction Drawing (Revised)
Planned Development (PD) Narrative (Revised)
Proposed Development Conditions
Utility Allocation Policy (Revised)
2nd Resubmittal
September 19, 2025
Construction Drawing (Revised)